Home
Details
Floor Plans
Exclusive Listing Agent - Maggie Gold Seelig
MGS Group Real Estate
Contact Us
Home
Details
Floor Plans
Exclusive Listing Agent - Maggie Gold Seelig
MGS Group Real Estate
Contact Us
download
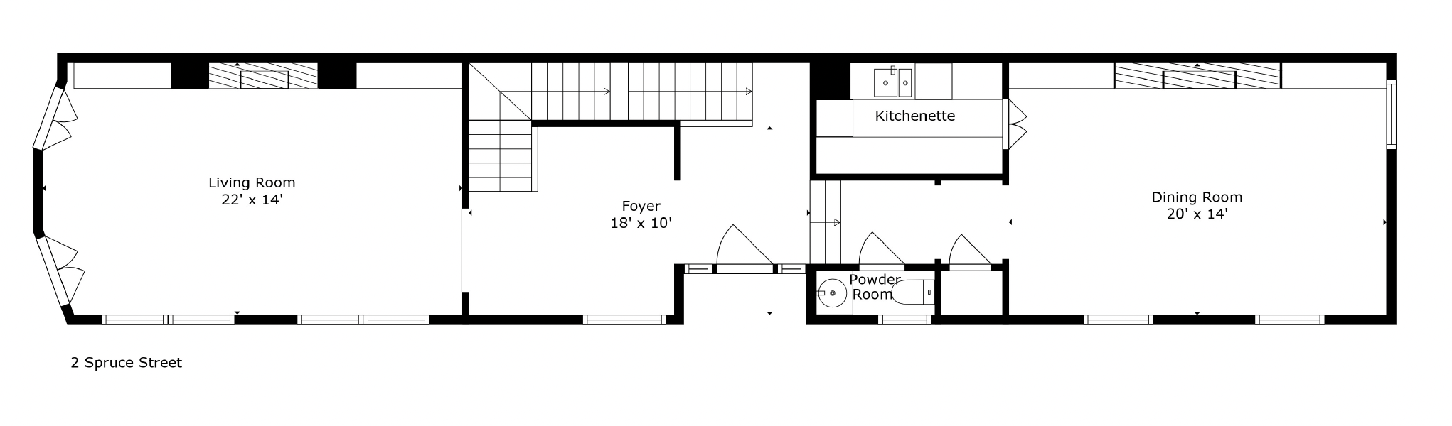
First Floor
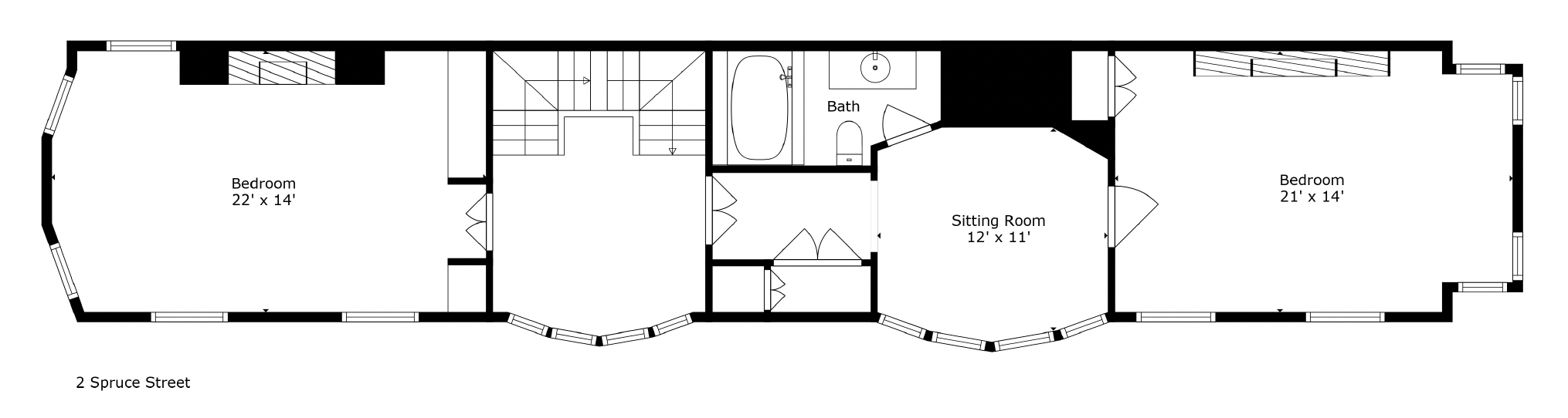
Second Floor
Third Floor
Fourth Floor
Lower Level